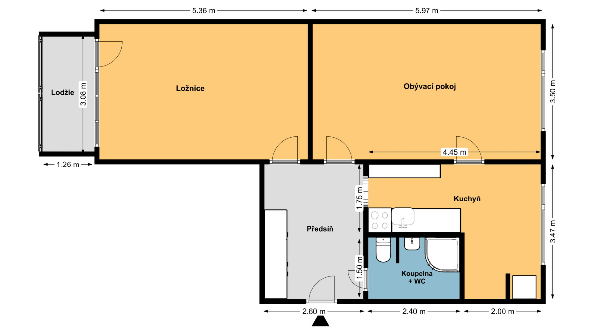
Nabízíme k prodeji byt o dispozici 2+1 a celkové výměře 69 m², který se nachází ve 4. patře revitalizovaného a velmi dobře udržovaného panelového domu v ulici Lábkova v plzeňských Skvrňanech. Nabízí praktické dispoziční řešení se samostatnou kuchyní, dvěma obytnými pokoji, lodžií o velikosti 4 m² a prostornou předsíní. Součástí bytu je i sklepní kóje o velikosti 1 m².
Koupelnové jádro je zděné, ostatní části prošli rekonstrukcí v minulosti, která již neodpovídá současným standardům. Nabízí se tím ideální možnost vytvořit si bydlení přesně podle vlastních představ. Nemovitost je vhodnou volbou pro ty, kteří hledají vlastní bydlení s možností rekonstrukce nebo zajímavou investici.
Nemovitost se nachází ve vyhledávané lokalitě Plzeň Skvrňany, která nabízí kompletní občanskou vybavenost a dobrou dopravní dostupnost do centra města. V okolí se nachází školy, školky, obchody, zdravotní služby i možnosti pro sportovní a volnočasové aktivity.
Energetická náročnost budovy je dle platné legislativy třídy C, tedy úsporná.
Uvedená cena je konečná, včetně kompletního právního a realitního servisu. S financováním této nemovitosti Vám rádi pomůžeme. Pro více informací nebo sjednání prohlídky nás neváhejte kontaktovat.
