Rodinný dům Obecnice - Příbram

5590000
5590000
Kč/měsíc
Prodáno
Pronájem
REZERVACE

Nabízíme k prodeji rodinný dům o dispozici 5+1 s celkovou užitnou plochou přibližně 220m², který se nachází v oblíbené a klidné obci Obecnice nedaleko Příbrami. Nemovitost je určena k rekonstrukci a představuje výjimečnou příležitost pro klienty, kteří hledají dům s výrazným prostorem a možností realizace vlastních představ. Díky dvěma podlažím lze objekt využít jako prostorné rodinné bydlení nebo jako dvougenerační dům.

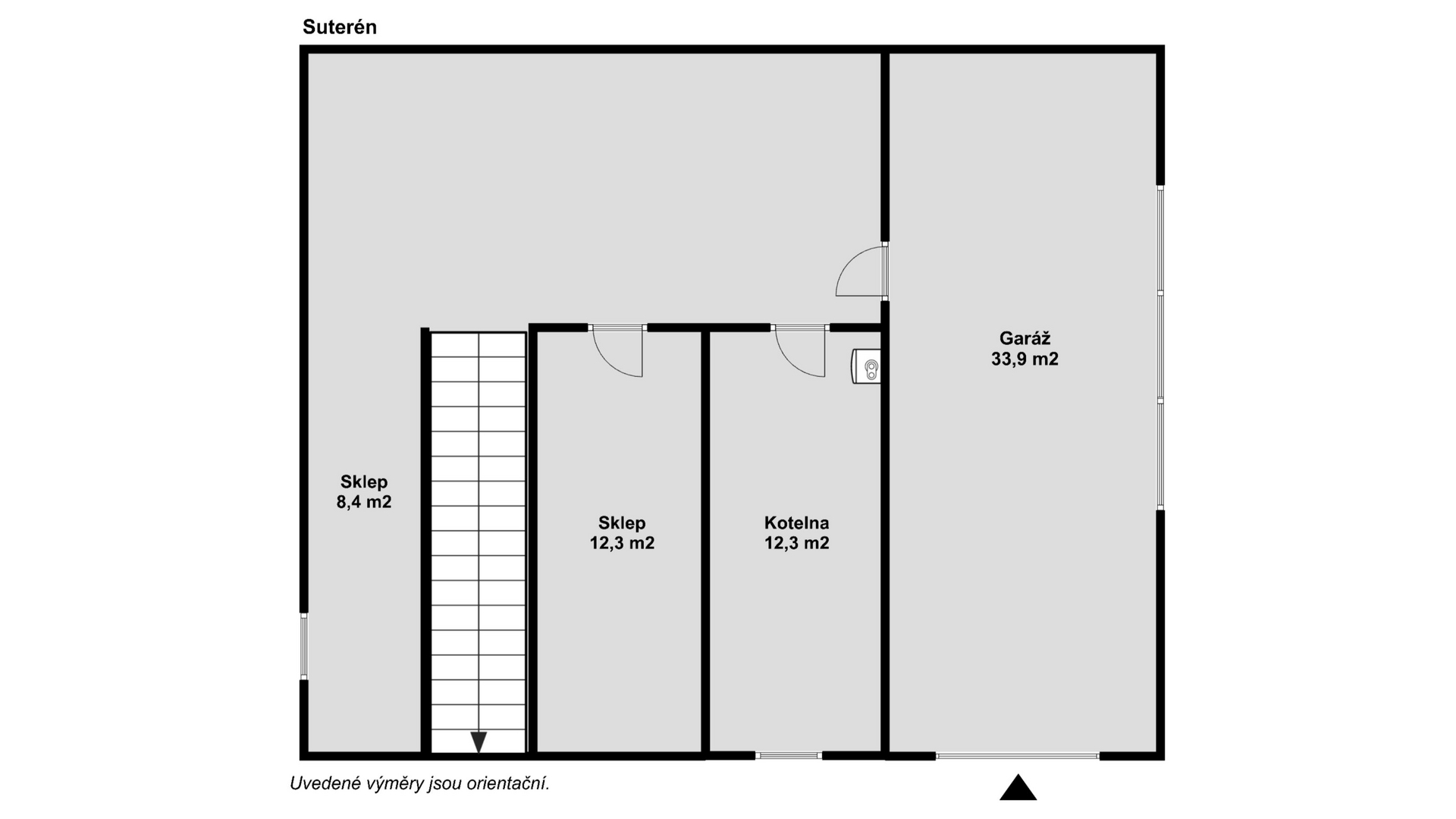
Rodinný dům byl dokončen v roce 1980, je podsklepený a nabízí praktické zázemí v podobě dvou sklepů, kotelny a garáže, do které se pohodlně vejde jedno auto. Další auto lze zaparkovat před domem. V přízemí se nachází bytová jednotka 3+1 s koupelnou a samostatnou toaletou. První patro je ve fázi hrubé stavby a nabízí prostor pro další bytovou jednotku (např. 2 + 1) se samostatným sociálním zázemím a vstupem na terasu, nebo lze využít celkový dispoziční potenciál domu na 5 + 1. Je zde zavedena elektřina, veřejný vodovod i kanalizace a vytápění bylo zajištěno pomocí kotle na tuhá paliva.

Celková plocha pozemku činí 829 m2, z čehož zastavěná plocha domu je 114 m2 a zahrada má výměru 715 m2. Pozemek u domu poskytuje dostatek prostoru pro zahradu, odpočinkovou zónu i praktické využití. Průkaz energetické náročnosti budovy není v současné době k dispozici, a proto je nemovitost v souladu se zákonnými požadavky dočasně označena energetickou třídou G.

Obecnice je vyhledávanou lokalitou díky svému klidnému prostředí, blízkosti brdských lesů a zároveň dobré dostupnosti do Příbrami, kde je kompletní občanská vybavenost. V obci se nachází základní a mateřská škola, sportovní areál, hřiště, knihovna a je zde pravidelné autobusové spojení.

Tento dům je ideální volbou pro ty, kteří hledají nemovitost s duší, s možností přetvořit ji podle vlastních představ, v klidné obci s dobrou dostupností do města.

Cena je uvedena včetně realitních a právních služeb. Nemovitost lze financovat hypotečním úvěrem, který Vám rádi a bezplatně zajistíme.
Pro více informací a případnou prohlídku nás neváhejte kontaktovat.

Galerie

Thank you! Your submission has been received!
Oops! Something went wrong while submitting the form.
5590000
5590000
0
Měsíční splátka
0
Celková splatná částka
Thank you! Your submission has been received!
Oops! Something went wrong while submitting the form.

Kontakt

Líbí se vám nemovitost? Nechte nám na sebe kontakt a my se vám ozveme zpět.
+420 775 020 149
info@3kholding.cz
Děkujeme za zprávu, ozveme se zpět co nejdříve!
Něco se nepovedlo, zkuste to prosím ještě jednou
Pro zajištění funkčnosti webu a měření návštěvnosti využíváme cookies. Kliknutím na "Povolit vše" souhlasíte s jejich použitím.
Máte rádi sušenky? My ano! Tyhle malé soubory slouží k tomu, aby byla návštěva našeho webu příjemným zážitkem, vše fungovalo jak má a my jsme ho mohli dále zlepšovat. Tak co, dáte si s námi?